15
N/A
Logo
call + 385 (1) 4810 138 mail info@domprojekt.hr
Close Close
heart_plus N/A
  • Startseite
  • Hauskatalog
  • Referenzen
  • Hausbau
  • Bautechnik
  • Über uns
  • Neuigkeiten & Veranstaltungen
  • Hauspreisliste
  • Kontakte
    N/A media illustration
    Facebook
    media illustration
    Instagram
    media illustration
    Whatsapp
    Close
DOMPROJEKT D.O.O. Trnjanska cesta 37, 10000, Zagreb Tel: +385 (1) 4810 138 Email: info@domprojekt.hr

Lidija

Ukupna neto površina:

134,28m²

Broj spavaćih soba:

3

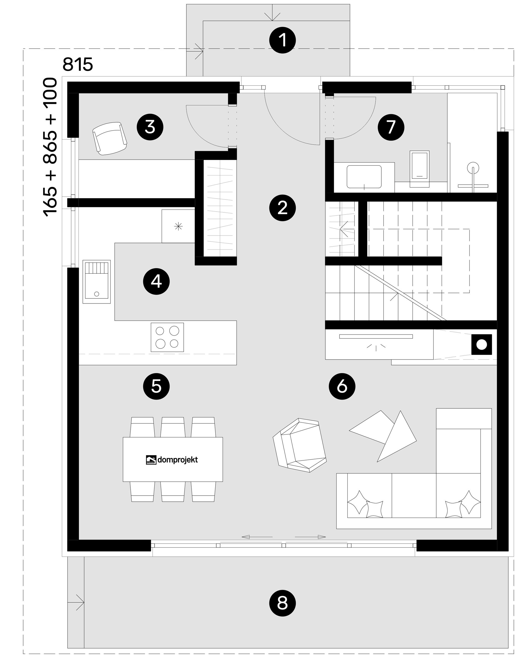
Lidija tlocrt prizemlje

60,20 m²

Lidija tlocrt kat

74,08 m²

Hauskatalog

Referenzen

Neuigkeiten & Veranstaltungen

Hauspreisliste

Broschüren

Kontakte

Hausbau

Bautechnik

Über uns

phone icon

+385 (1) 4810 138

mail icon

info@domprojekt.hr

N/A

N/A

medalje

Follow us

Facebook
Instagram
Whatsapp
Linkedin
X
YouTube
TikTok

WEB DESIGN BY THE BIG IDEA LAB