ZUM VERKAUF: Villa in Gabonjin, Insel Krk
13.06.2024Wir verkaufen eine Villa mit zwei Wohnungen, Keller und Swimmingpool in Gabonjin, auf der Insel Krk.
- Malinska Zentrum 4,5 km
- Krk Zentrum 14,3 km
- Flughafen Rijeka 16,5 km
- Rijeka Zentrum 38,6 km.
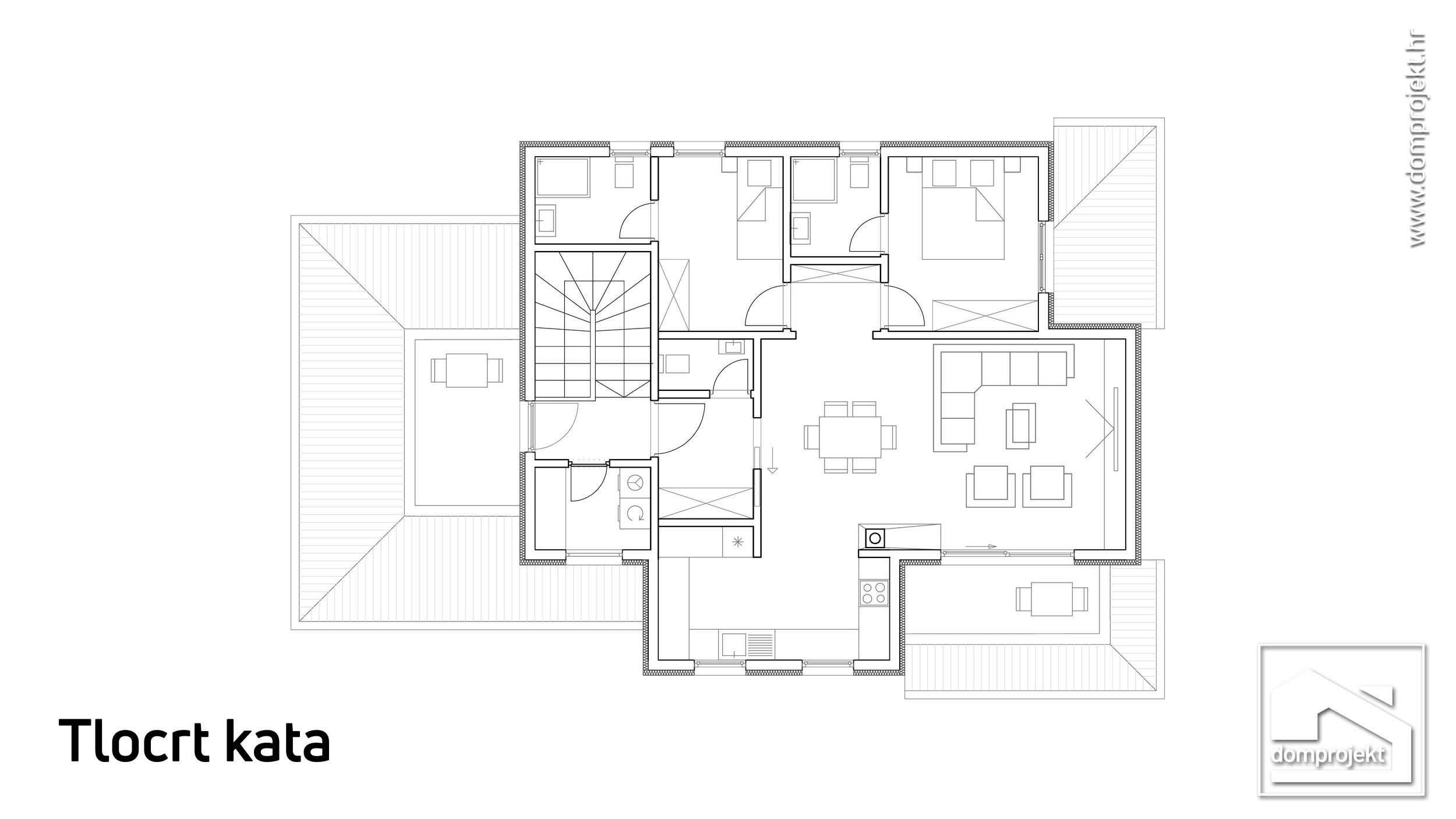
Das Gebaude hat zwei Wohnungen, jede auf eigene Etage, mit dem Keller, geschlossene Treppe, Swimmingpool, und Parkplätze.
Bruttofläche des Gebaudes beträgt 284,35 m².
Die Parzelle hat 931 m².
Kellergeschoss: Netto 59,65 m².
Erdgeschoss: Netto 97,60 m².
1. Stock: Netto 89,19 m².
Swimmingpool: 6,50 m × 4,00 m
Energiezertifikat: A+
Komplett gefertigtes Objekt, ohne Möbel.
Weitere Infos auf:
Mladen Štefanac:
+385 99 2803 733
mladen.stefanac@domprojekt.hr
Ivana Čohar:
+385 99 280 3380
ivana.cohar@domprojekt.hr
Projektni ured Zagreb:
+385 1 48 10 138
info@domprojekt.hr
Bruttofläche des Gebaudes beträgt 284,35 m².
Die Parzelle hat 931 m².
Kellergeschoss: Netto 59,65 m².
Erdgeschoss: Netto 97,60 m².
1. Stock: Netto 89,19 m².
Swimmingpool: 6,50 m × 4,00 m
Energiezertifikat: A+
Komplett gefertigtes Objekt, ohne Möbel.
Weitere Infos auf:
Mladen Štefanac:
+385 99 2803 733
mladen.stefanac@domprojekt.hr
Ivana Čohar:
+385 99 280 3380
ivana.cohar@domprojekt.hr
Projektni ured Zagreb:
+385 1 48 10 138
info@domprojekt.hr